Planungsbüro im Bregenzerwald
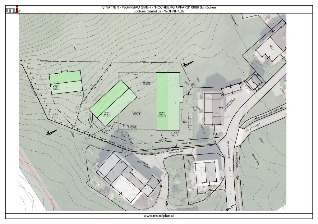
Beim Neubau "Sonnberg-Aparts" handelt es sich um 17 hochwertige Wohnungenzur Gewerblichen Vermietung mit Tiefgaragenplätze und FreizeitanlageBauherr: "Sonnberg-Aparts": C.Natter Wohnbau GmbH, HirschauPlanung: Planungsbüro Muxel Johann GmbH
>Tiefgarage für 27 PKW>Haus-1- 8 Wohnungen zur Gewerblichen Vermietung / 27 Betten>Haus-2- 9 Wohnungen zur Gewerblichen Vermietung / 33 Betten
Beim Neubau "Sonnberg-Aparts" handelt es sich um 17 hochwertige Wohnungen
zur Gewerblichen Vermietung mit Tiefgaragenplätze und Freizeitanlage
Bauherr: "Sonnberg-Aparts": C.Natter Wohnbau GmbH, Hirschau
Planung: Planungsbüro Muxel Johann GmbH
>Tiefgarage für 27 PKW
>Haus-1- 8 Wohnungen zur Gewerblichen Vermietung / 27 Betten
>Haus-2- 9 Wohnungen zur Gewerblichen Vermietung / 33 Betten